Leave a Message

Thank you for your message. We will be in touch with you shortly.

Explore Our Properties

Property Description

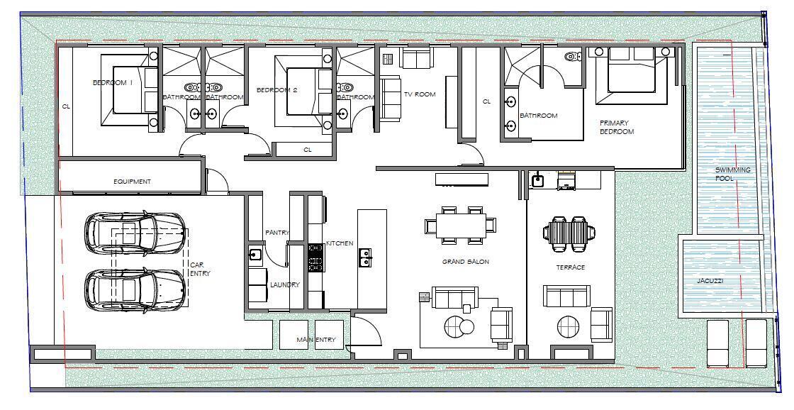
When you enter this spacious single level floorplan you will find that it is inviting and comfortable. This home with 3 full Bedrooms and 4 Bathrooms comes with a 4th Flex Room for entertainment or 4th bedroom, homes to be built to the highest quality and will be ready to move in 9 months from deposit, finishes will include beautiful granite, marble and travertine finishes. This home includes pool Our standard appliances are GE Cafe. These single level homes were well thought out and meticulously designed with every needed feature to make them not only desirable but functional. All residences are ready to enjoy the amenities that Quivira has to offer from Golf to the amazing Beach Club and Gym. floorplan is of actual home for sale, photos in listing are from the estates at Cielo Marbella

Overview

Property Status
For Sale
MLS ID
25-1999
Property Type
Residential
Year Built
2025

Features & Amenities

Total Area
2,857.64 Sq.Ft.
Neighborhood
Cabo San Lucas
Architecture Styles
One Story
Pool
Pool
Appliances
Refrigerator, Range, Microwave, Dishwasher
Other Interior Features
Disposal, Gym
Security Features
Guarded, Gated
Other Exterior Features
Golf, Beach Club
Sales Price
$1,695,000

Downloads

52 The Heights at Cielo, Single Level Quivira Home lot

Schedule a Tour

We would love to help you see this beautiful home! As a full-service brokerage, we can help you tour. Please submit an offer, and answer questions about the buying process.

Thank you

for your interest in 52 The Heights at Cielo, Single Level Quivira Home lot, Pacific

52 The Heights at Cielo, Single Level Quivira Home lot
Navigate
Cabo San Lucas

Explore Cabo San Lucas

read more

Mortgage Calculator

Estimate your monthly mortgage payment, including the principal and interest, property taxes, and HOA. Adjust the values to generate a more accurate rate.
$0,000 Your Payment 20 15 65
$0,000 Your Payment

I'm Interested In

52 The Heights at Cielo, Single Level Quivira Home lot

or
  • CallPatrick Neal

    License #LIC-RAPIBCS-0917

    (624) 160-1502
  • Cabo Real Estate for Sale

    Featured Properties

    • Chileno Point 105 For Sale

      $27,995,000

      Chileno Point 105, Cabo Corridor

      • 5 Beds
      • 7 Baths
      • 15,227.44 Sq.Ft.
    • Cielo Marbella Lot 29, Single Level Home For Sale

      $4,399,000

      lot 29 Cielo Marbella move-in 45 days, Single Level NEW Home, Pacific

      • 5 Beds
      • 6 Baths
      • 10,031.55 Sq.Ft.
    • Misiones For Sale

      $840,000

      Misiones, Cabo Corridor

      • 2 Beds
      • 2 Baths
      • 1,760.77 Sq.Ft.
    • Penthouse Pelican, Marea Los Cabos For Sale

      $515,000

      Penthouse Pelican, Marea Los Cabos, Cabo San Lucas

      • 3 Beds
      • 2 Baths
      • 1,947.56 Sq.Ft.
    • GAVIOTA MAREA LOS CABOS, CONDO For Sale

      $350,000

      GAVIOTA MAREA LOS CABOS, CONDO, Cabo San Lucas

      • 2 Beds
      • 2 Baths
      • 936.12 Sq.Ft.
    View All Properties

    Follow Us On Instagram